М2ДОМ
М2ДОМ
Официальный сайт застройщика
КОМПАНИЯ:
+7 (960) 939-68-80
НАШИ ПРОЕКТЫ
О КОМПАНИИ
ГАЛЕРЕЯ
КОНТАКТЫ
НАПИШИТЕ НАМ
О компании
Наши проекты
Галерея
Контакты
Напишите нам
М2ДОМ — ЗАСТРОЙЩИК, КОТОРЫЙ ВСЕ ПРОДУМАЛ И СПЛАНИРОВАЛ ДЛЯ ВАС.
Оптимальные по площади
УСАДЬБА И85
[ СТРОИМ НА ВЕКА ]
СТРОИМ НАСТОЯЩЕЕ
Одноэтажный дом с хозяйственным помещением и тремя спальнями
85
32
0%
[ ЖИЛАЯ
ПЛОЩАДЬ]
[ ПЛОЩАДЬ ТЕРРАСЫ ]
[ РАССРОЧКА ]
НАШИ ПРОЕКТЫ
+
М
2
М
2
1
2
3
4
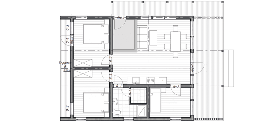
Планировка дома
5
Список помещений:
Терраса: 31,32 м
2
Кухня-гостиная: 33,02 м
2
Тамбур
Спальня: 11,13 м
2
Спальня: 11,13 м
2
Ванная: 4,57 м
2
Сауна: 1,65 м
2
Спальня: 7,89 м
2
Терраса: 6,36 м
2
6
7
8
9
Дома в стиле «Барнхаус» с террасами
Дома с ремонтом и мебелью
+ Запросить каталог проектов
НАШИ
ЛУЧШИЕ
ПРОЕКТЫ
[ КОМПАКТНЫЕ ДОМА ]
УСАДЬБЫ S
Небольшие по площади дома с выверенными планировками для комфортного проживания или сдачи в аренду
+ Запросить каталог проектов
[ ОПТИМАЛЬНАЯ ПЛОЩАДЬ ]
УСАДьБЫ ML
Проекты домов для тех, кто серьезно настроился наслаждаться загородной жизнью в своем доме
[ РЕЗИДЕНЦИИ ]
УсадьбЫ ХL
Дома для большой семьи или шумной компании увеличенной площади и комфортности
Made on
Tilda