М2ДОМ
М2ДОМ
Официальный сайт застройщика
КОМПАНИЯ:
+7 (960) 939-68-80
НАШИ ПРОЕКТЫ
О КОМПАНИИ
ГАЛЕРЕЯ
КОНТАКТЫ
НАПИШИТЕ НАМ
О компании
Наши проекты
Галерея
Контакты
Напишите нам
М2ДОМ — ЗАСТРОЙЩИК, КОТОРЫЙ ВСЕ ПРОДУМАЛ И СПЛАНИРОВАЛ ДЛЯ ВАС.
Резиденции
УСАДЬБА H126
[ + АНТРЕСОЛЬ ]
СТРОИМ НАСТОЯЩЕЕ
Одноэтажный дом с большой гостиной, крытой террасой и большой мастер-спальней.
101
23
0%
[ ЖИЛАЯ
ПЛОЩАДЬ]
[ ПЛОЩАДЬ ТЕРРАСЫ ]
[ РАССРОЧКА ]
НАШИ ПРОЕКТЫ
+
М
2
М
2
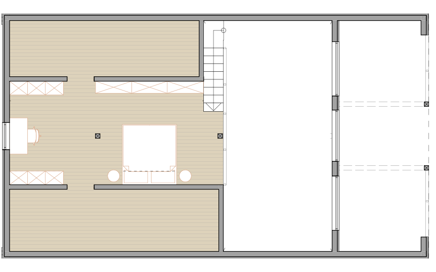
Планировка дома с антресолью
Список помещений:
1 этаж
Терраса
Кухня-гостиная
Холл
Ванная
Душевая
Сауна
Прихожая
Спальня 1
Спальня 2
Крыльцо
2 этаж
Антресоль
Чердак-кладовая
Чердак-кладовая
Душевая
4,1 м
2
Чердак-кладовая
Чердак-кладовая
15,2 м
2
10,7 м
2
4,4 м
2
4,1 м
2
29,0 м
2
23,0 м
2
4,9 м
2
2,4 м
2
4,0 м
2
5,1 м
2
23,6 м
2
Сауна
4,4 м
2
Спальня
15,2 м
2
Спальня
10,7 м
2
Холл
4,9 м
2
Прихожая
4,0 м
2
Ванная
5,1 м
2
Крыльцо
2,4 м
2
Кухня-гостиная
29,0 м
2
Терраса
23,0 м
2
Комната
23,6 м
2
Дома в стиле «Барнхаус» с террасами
Дома с ремонтом и мебелью
+ Запросить каталог проектов
НАШИ
ЛУЧШИЕ
ПРОЕКТЫ
[ КОМПАКТНЫЕ ДОМА ]
УСАДЬБЫ S
Небольшие по площади дома с выверенными планировками для комфортного проживания или сдачи в аренду
+ Запросить каталог проектов
[ ОПТИМАЛЬНАЯ ПЛОЩАДЬ ]
УСАДьБЫ ML
Проекты домов для тех, кто серьезно настроился наслаждаться загородной жизнью в своем доме
[ РЕЗИДЕНЦИИ ]
УсадьбЫ ХL
Дома для большой семьи или шумной компании увеличенной площади и комфортности
Made on
Tilda