М2ДОМ
М2ДОМ
Официальный сайт застройщика
КОМПАНИЯ:
+7 (960) 939-68-80
НАШИ ПРОЕКТЫ
О КОМПАНИИ
ГАЛЕРЕЯ
КОНТАКТЫ
НАПИШИТЕ НАМ
О компании
Наши проекты
Галерея
Контакты
Напишите нам
М2ДОМ — ЗАСТРОЙЩИК, КОТОРЫЙ ВСЕ ПРОДУМАЛ И СПЛАНИРОВАЛ ДЛЯ ВАС.
Резиденции
УСАДЬБА 100
[ СТРОИМ НА ВЕКА ]
СТРОИМ НАСТОЯЩЕЕ
Просторный одноэтажный дом с высокими потолками.
102
25
0%
[ ЖИЛАЯ
ПЛОЩАДЬ]
[ ПЛОЩАДЬ ВОДНОЙ ЗОНЫ ]
[ РАССРОЧКА ]
НАШИ ПРОЕКТЫ
+
М
2
М
2
1
2
3
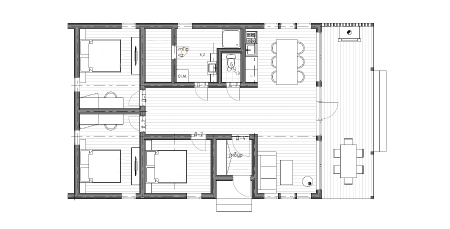
Планировка дома
4
5
Список помещений:
Терраса: 23,1 м
2
Кухня-гостиная: 36,2 м
2
Санузел: 1,3 м
2
Предбанник: 6,2 м
2
Парная: 3,3 м
2
Спальня: 11,1 м
2
Спальня: 11,1 м
2
Спальня: 8,2 м
2
Тамбур: 3,2 м
2
6
7
8
9
Дома, продуманные для жилья и отдыха
+ Запросить каталог проектов
Дома с ремонтом и мебелью
НАШИ
ЛУЧШИЕ
ПРОЕКТЫ
[ КОМПАКТНЫЕ ДОМА ]
УСАДЬБЫ S
Небольшие по площади дома с выверенными планировками для комфортного проживания или сдачи в аренду
+ Запросить каталог проектов
[ ОПТИМАЛЬНАЯ ПЛОЩАДЬ ]
УСАДьБЫ ML
Проекты домов для тех, кто серьезно настроился наслаждаться загородной жизнью в своем доме
[ РЕЗИДЕНЦИИ ]
УсадьбЫ ХL
Дома для большой семьи или шумной компании увеличенной площади и комфортности
Made on
Tilda